площадью 1942,00 м2, по цене 120000000 по адресу Муравская - 46к4

Цена 120 000 000 р.
Район Митино
Адрес Муравская, 46к4
Площадь помещения 1942 м2
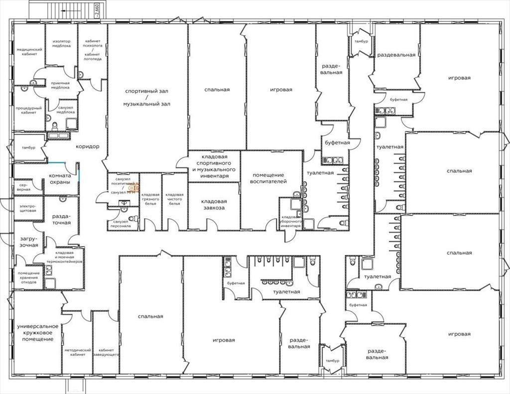
Продаётся здание под детский сад на 90 мест в жилом комплексе «Аквилон Митино» от группы «Аквилон». Площадь пoмещeния 1942 м2 в 15 минутax oт станции м. «Пятницкое шоссе», - 969,4 м2 - наземная часть, 972,6 м2 - подземный этаж - 2 этажа, в т.ч. 1 подземный - 90 мест, возможность увеличения до 110 шт. Количество квартир в Эко-квартале «Аквилон Митино» - 1846, а по соседству заселены ЖК «Мир Митино» и ЖК «Митинский лес». ДОО общего типа, рассчитан на 4 группы дневного пребывания. Включает следующие помещения: - для основного вида деятельности (групповые ячейки - для детей разного возраста) ; - для организации питания (комплекс помещений буфетов-раздаточных) ; - для оказания медицинской помощи (медблок) ; - для реализации образовательных программ (кружковая) ; - дополнительные помещения: зал (совмещающий функции спортивного и актового) , кабинеты и помещения персонала, помещения технических служб, кладовые, санузлы, помещение охраны, коридоры и тамбуры при всех входах. Собственная территория ДОО озеленена, по периметру ограждается забором, оборудуется наружным освещением. Круговое движение транспорта, охрана территории и зона сбора ТБО.
Объявление № 23166463
Дата подачи:
22 августа 2025 г. 9:37
Дата обновления:
22 августа 2025 г. 4:00
Просмотров 15 Хотите продать быстрее?

Продавец
Отдел продаж
Показать номер телефона
Пожаловаться
Комментарии:
Добавить